Уважаемые клиенты! В связи с изменением ставки НДС на нашем сайте проводятся технические работы по обновлению цен на продукцию.
Для получения актуальной стоимости просьба обращаться к менеджеру.
Приносим свои извинения за временные неудобства и благодарим за понимание
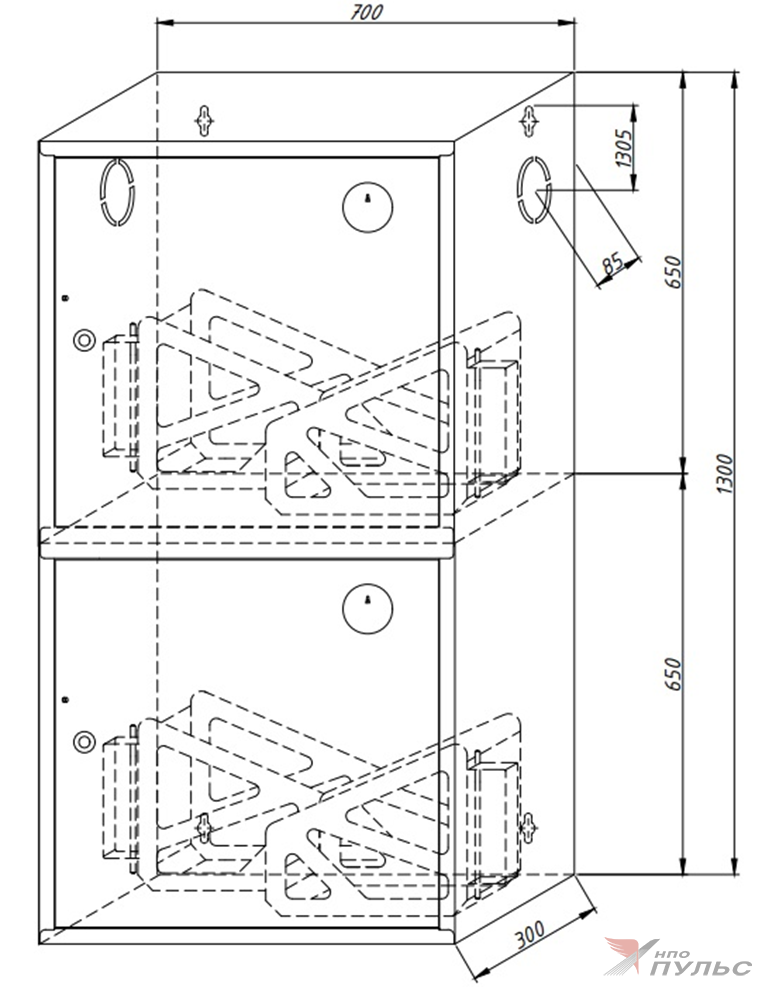
ШП-К-О-Пульс-320-12 НЗК Н/С 4 кассеты, без перфорации в нижней секции, навесной, закрытый, красный, 700х1300х300
Пожарный шкаф - вид пожарного инвентаря, предназначенного для размещения в нем комплекта оборудования пожарного крана и переносных огнетушителей (или без них) на производственных объектах, в жилых и общественных зданиях.
Шкаф пожарный ШПК Пульс-320-12 НЗК Н/С – навесной закрытый шкаф красного цвета нестандартного исполнения. Предназначен для размещения четырех рукавов, соответствует ГОСТ Р 51844-2009 Техника пожарная. Шкафы пожарные. Общие технические требования. Методы испытаний.
Секции шкафа имеют равные размеры и расположены друг над другом. Верхний и нижний отделы укомплектованы двумя поворотными корзинами, в которых хранятся свернутые в скатку пожарные напорные рукава.
ВАЖНО! Нижние корзины являются съемными. При необходимости, вы можете их снять и оборудовать нижний отсек огнетушителями.
Шкаф пожарный ШПК Пульс-320-12 НЗК Н/С навешивается на стены, имеет закрытое исполнение, шкаф окрашен в красный цвет, дверцы открываются в левую сторону, на дверцах установлен почтовый замок.
- Габариты встраиваемой части (ширина, высота, глубина) - 700х1300х300 мм
Секции шкафа имеют равные размеры и расположены друг над другом. Верхний отдел укомплектован двумя поворотными корзинами, в которых хранятся свернутые в скатку пожарные напорные рукава. В отделении внизу хранятся два огнетушителя.
С 2022 года шкафы пожарные производства АО «НПО «ПУЛЬС» имеют вентиляционные отверстия на дверцах в виде логотипа.
![]()
Шкафы, произведенные ранее, выпускались с вентиляционными отверстиями в дверцах с рядом круглых отверстий. Изделия более раннего выпуска не имеют в дверцах вентиляционных отверстий. Вентиляция обеспечивается другим конструктивным решением – через сквозные зазоры по периметру дверцы.
Дверцы пожарного шкафа открываются на угол не менее 160°, а также позволяют быстро и беспрепятственно разворачивать рукавную линию и доставать технические средства.
- Рукавная кассета пожарного шкафа поворачивается в горизонтальной плоскости на угол не менее 90°.
- Рукавная кассета выдерживает статическую нагрузку не менее 300 Н.
Дверцы пожарного шкафа имеют отверстия для их опломбирования и фиксации в закрытом положении, позволяющие безопасно открывать шкаф в экстренных случаях в течение не более 15 с.
Пожарный шкаф изготовлен из качественной стали.
На дверце шкафа, где размещен пожарный кран клеится знак ![]()
На дверце шкафа, где размещен огнетушитель клеится знак ![]()
На внутренней стороне дверцы шкафа клеится информационная наклейка Пожарная безопасность.

На внутренней стенке шкафа клеится наклейка с маркировкой шкафа.

Шкаф упакован в воздушно-пузырчатую полиэтиленовую плёнку.
В комплект поставки шкафа входит:
| Модель | Шкаф | Паспорт | Знак F02 Пожарный кран | Знак F04 Огнетушитель | Ключи | Стекло отсека запасного ключа |
| Исполнение с почтовым замком | ||||||
| ШП-К-О-Пульс-320-12НЗК Н/С | 1 шт. | 1 шт. | 2 шт. |
1 шт. |
4 шт. | 2 шт. |
Срок эксплуатации шкафа - 10 лет.
Гарантийный срок службы шкафа - 12 месяцев со дня реализации.

